中古一戸建て 吉川市吉川1丁目
所在地
吉川市吉川1丁目
6,800万円
42.51坪
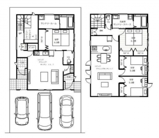
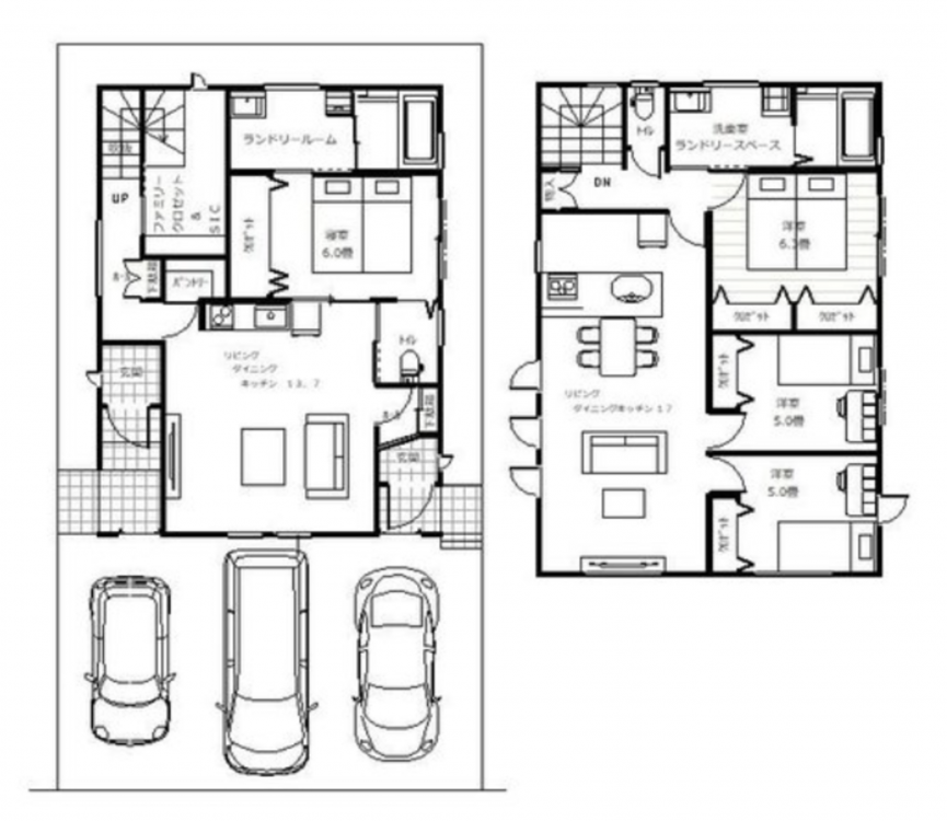
5SLDK
・新築二世帯住宅♪♪
・ミニストップ
・ビックエー
・コモディイイダ吉川店
・関公園
・磯久クリニック
物件概要
- 交通
-
武蔵野線 吉川駅 まで 徒歩15分
- 接道状況
- 土地面積
- 148.82㎡ (45.01坪)
- 建物面積
- 140.56㎡ (42.51坪)
- 築年数
-
2024年
(令和6)
11月
築1年 - 建ぺい率
- 60%
- 容積率
- 200%
- 土地権利
- 所有権
- 構造および階数
- 木造 地上2階建
- 小学校区
- 吉川 ( 650m )
- 中学校区
- 中央 ( 700m )
- 私道負担
- 地目
- 宅地
- 現況
- 空
- 引渡時期
- 相談
- 駐車場
- 有 3台
- 上水道
- 公共
- 下水道
- 公共
- ガス
- 都市計画
- 市街化区域
- 用途地域
- 1種住居
- 設備・条件
- システムキッチン、カウンターキッチン、食器洗浄乾燥機、シャンプードレッサー、モニタ付インターホン、洗浄便座、ウォークインクローゼット、駐車場3台分、トイレ2箇所
- 備考
- 取引態様
- 仲介
