新築一戸建て 三郷市彦川戸1丁目
所在地
三郷市彦川戸1丁目
2,980万円
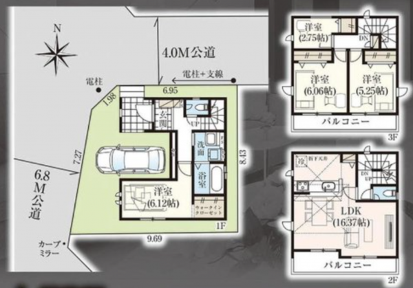
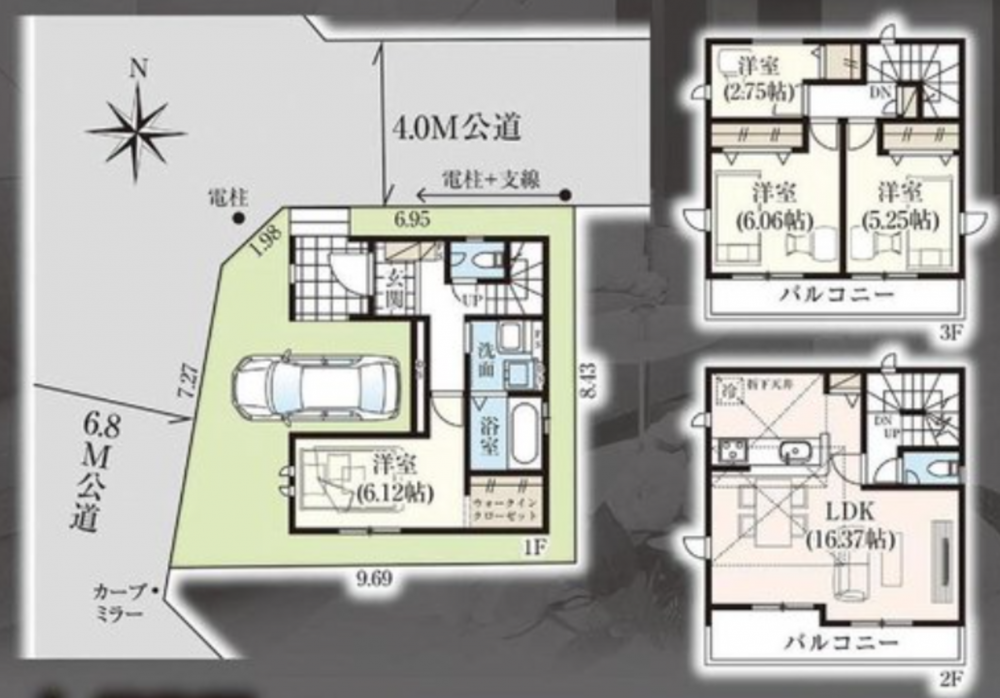
32.55坪
4LDK
・多彩な商業施設が点在するエリア‼
・ヤマダデンキ:徒歩14分
・イトーヨーカドー三郷店:徒歩18分
・ドラックセイムス:徒歩5分
・セブンイレブン:徒歩7分
・彦成保育園:徒歩14分
・みやおか幼稚園:徒歩21分
・三愛会総合病院:徒歩14分
物件概要
- 交通
-
武蔵野線 新三郷駅 バス10分乗車 バス停八条橋 まで 徒歩4分
- 接道状況
-
北側 公道4m 間口約7.2m
西側 公道6.8m 間口約7.2m - 土地面積
- 74.84㎡ (22.63坪)
- 建物面積
- 107.63㎡ (32.55坪)
- 築年数
- 2025年 (令和7) 9月
- 建ぺい率
- 60%
- 容積率
- 200%
- 土地権利
- 所有権
- 構造および階数
- 木造 地上3階建
- 小学校区
- 彦成 ( 1120m )
- 中学校区
- 北 ( 2160m )
- 私道負担
- 地目
- 宅地
- 現況
- 空
- 引渡時期
- 即時
- 駐車場
- 有
- 上水道
- 公共
- 下水道
- 公共
- ガス
- 都市ガス
- 都市計画
- 市街化区域
- 用途地域
- 準工業
- 設備・条件
- システムキッチン、シャンプードレッサー、浴室乾燥機、モニタ付インターホン、洗浄便座、ウォークインクローゼット、複層ガラス、トイレ2箇所
- 備考
- 取引態様
- 仲介
