新築一戸建て 三郷市彦糸1丁目3号棟
所在地
三郷市彦糸1丁目3号棟
3,180万円
28.23坪
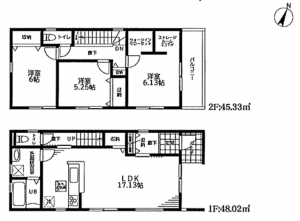
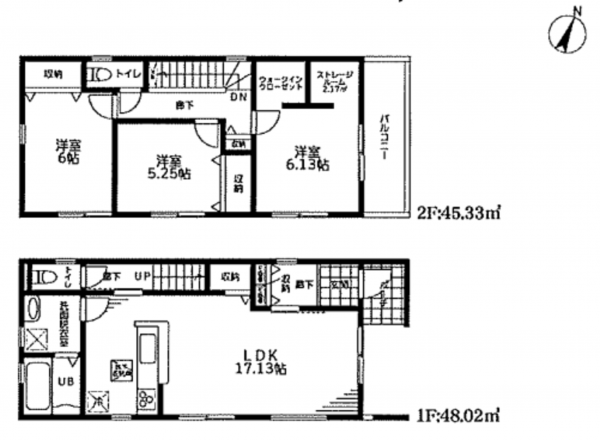
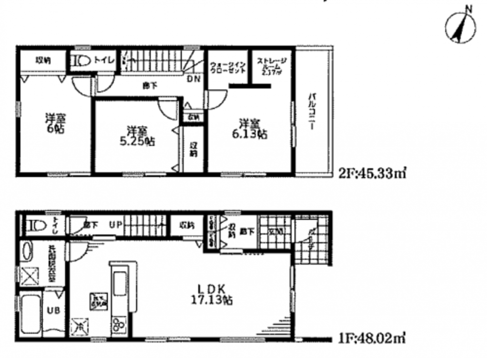
3SLDK
・生活動線に配慮した間取りです♪♪
・アコレ吉川高久店:徒歩19分(1509m)
・ミニストップ三郷彦音店:徒歩5分(400m)
・ドラッグセイムス吉川けやき通り店:徒歩10分(753m)
・ロピア ららぽーと新三郷店:徒歩32分(2485m)
・ドラッグストアセキ中曽根店:徒歩18分(1390m)
・医療法人三愛会三愛会総合病院:徒歩14分(1108m)
・吉川警察署:徒歩13分(980m)
物件概要
- 交通
-
武蔵野線 吉川駅 バス8分乗車
- 接道状況
- 東側 公道 間口約8.2m
- 土地面積
- 公簿 143.52㎡ (43.41坪)
- 建物面積
- 93.35㎡ (28.23坪)
- 築年数
- 2025年 (令和7) 12月
- 建ぺい率
- 60%
- 容積率
- 100%
- 土地権利
- 所有権
- 構造および階数
- 木造 地上2階建
- 小学校区
- 彦糸 ( 750m )
- 中学校区
- 彦糸 ( 1200m )
- 私道負担
- 地目
- 宅地
- 現況
- 引渡時期
- 相談
- 駐車場
- 有 2台
- 上水道
- 公共
- 下水道
- 公共
- ガス
- 都市ガス
- 都市計画
- 市街化区域
- 用途地域
- 1種低層
- 設備・条件
- システムキッチン、シャンプードレッサー、浴室乾燥機、モニタ付インターホン、洗浄便座、ウォークインクローゼット、複層ガラス、駐車場2台分、床下収納、トイレ2箇所
- 備考
- 取引態様
- 仲介
