新築一戸建て 吉川市栄町
所在地
吉川市栄町
3,580万円
29.03坪
3SLDK
・小中学校徒歩圏内です‼
・ライフ吉川栄町店:徒歩9分
・ドラックストアセキ吉川平沼店:徒歩4分
・セブンイレブン吉川平沼店:徒歩7分
・吉川中央総合病院:徒歩23分
物件概要
- 交通
-
武蔵野線 吉川駅 バス5分乗車 バス停平沼郵便局前 まで 徒歩2分
- 接道状況
-
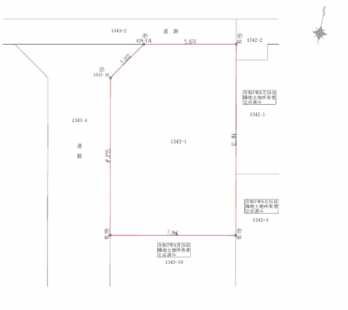
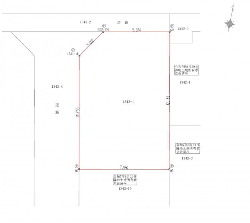
北側 公道5m 間口約5.1m
西側 公道4m 間口約10m - 土地面積
- 95.13㎡ (28.77坪)
- 建物面積
- 95.98㎡ (29.03坪)
- 築年数
- 2026年 (令和8) 4月
- 建ぺい率
- 60%
- 容積率
- 200%
- 土地権利
- 所有権
- 構造および階数
- 木造 地上2階建
- 小学校区
- 栄 ( 520m )
- 中学校区
- 中央 ( 835m )
- 私道負担
- 地目
- 宅地
- 現況
- 引渡時期
- 予定
- 駐車場
- 上水道
- 公共
- 下水道
- 公共
- ガス
- 都市ガス
- 都市計画
- 市街化区域
- 用途地域
- 準工業
- 設備・条件
- システムキッチン、カウンターキッチン、シャンプードレッサー、浴室乾燥機、モニタ付インターホン、洗浄便座、ウォークインクローゼット、床下収納、トイレ2箇所
- 備考
- 取引態様
- 仲介
