中古一戸建て 吉川市きよみ野5丁目
所在地
吉川市きよみ野5丁目
4,500万円
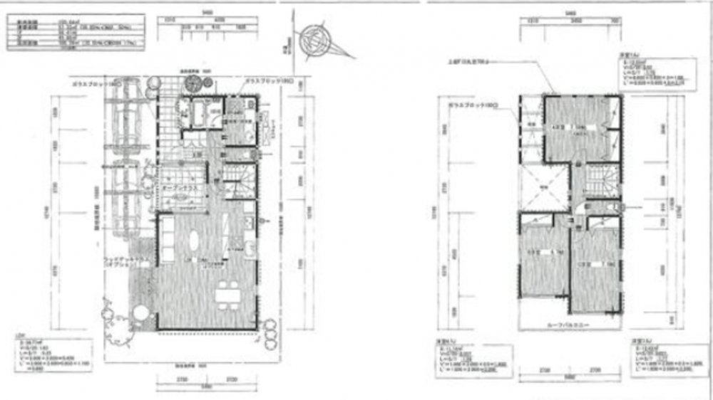
32.15坪
3LDK
・閑静な住宅街です♪
・コモディイイダ吉川店:427m
・スーパーマルサン吉川店:2604m
・ファミリーマート吉川会野谷店:249m
物件概要
- 交通
-
武蔵野線 吉川駅 まで 徒歩30分
- 接道状況
- 南西側 公道10m 間口約9m
- 土地面積
- 公簿 150.64㎡ (45.56坪)
- 建物面積
- 106.29㎡ (32.15坪)
- 築年数
-
2005年
(平成17)
11月
築20年 - 建ぺい率
- 50%
- 容積率
- 100%
- 土地権利
- 所有権
- 構造および階数
- 木造 地上2階建
- 小学校区
- 栄 ( 993m )
- 中学校区
- 東 ( 1341m )
- 私道負担
- 無
- 地目
- 宅地
- 現況
- 居住中
- 引渡時期
- 相談
- 駐車場
- 有
- 上水道
- 公共
- 下水道
- 公共
- ガス
- 都市計画
- 市街化区域
- 用途地域
- 2種低層
- 設備・条件
- システムキッチン、食器洗浄乾燥機、シャンプードレッサー、浴室乾燥機、洗浄便座、複層ガラス、追い焚き、床下収納、トイレ2箇所
- 備考
- 取引態様
- 仲介
