中古一戸建て 三郷市幸房
所在地
三郷市幸房
4,080万円
32.50坪
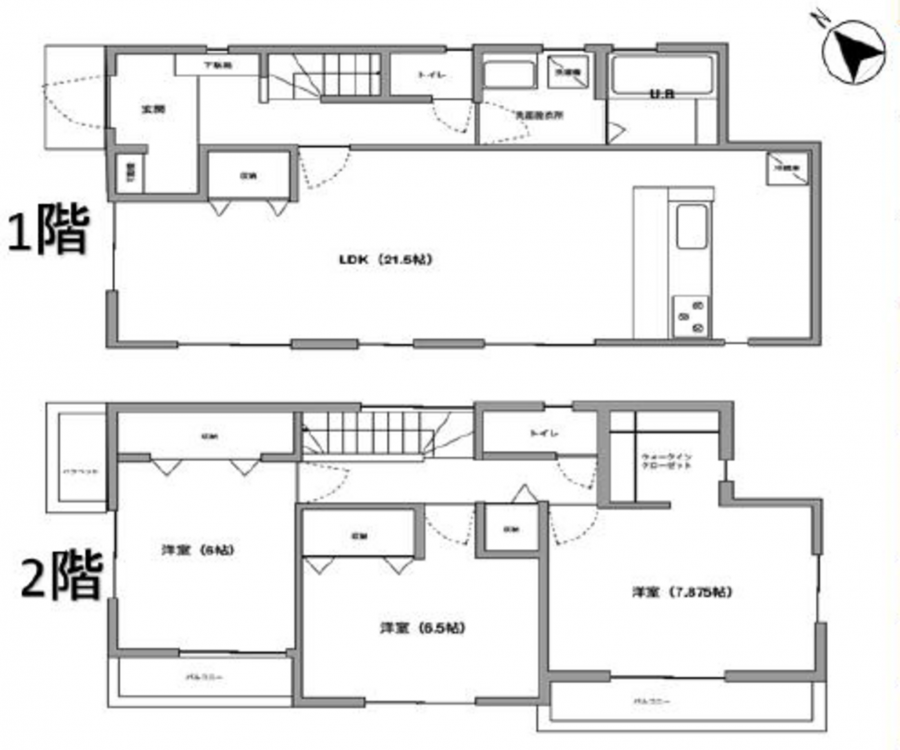
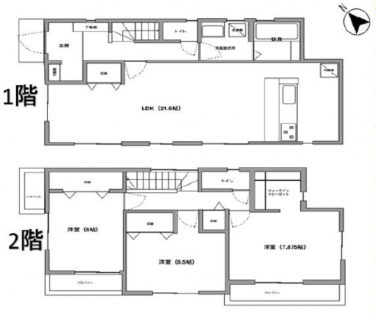
3LDK
・広々とした駐車場の物件です♪
・キッチン、洗面、トイレ等リフォーム
物件概要
- 交通
-
つくばEX 三郷中央駅 まで 徒歩8分
- 接道状況
- 土地面積
- 132.02㎡ (39.93坪)
- 建物面積
- 107.44㎡ (32.50坪)
- 築年数
-
2016年
(平成28)
11月
築9年 - 建ぺい率
- 60%
- 容積率
- 200%
- 土地権利
- 所有権
- 構造および階数
- 木造 地上2階建
- 小学校区
- 幸房
- 中学校区
- 北
- 私道負担
- 地目
- 宅地
- 現況
- 居住中
- 引渡時期
- 即時
- 駐車場
- 有
- 上水道
- 公共
- 下水道
- 浄化槽個別
- ガス
- プロパン個別
- 都市計画
- 市街化区域
- 用途地域
- 1種住居
- 設備・条件
- ウォークインクローゼット、トイレ2箇所
- 備考
- 取引態様
- 仲介
